U gebruikt een verouderde internetbrowser.
We raden u aan om de meest recente internetbrowser te installeren voor de beste weergave van deze website.
Een internetbrowser die up to date is, staat ook garant voor veilig surfen.

Helaas, dit pand is verkocht

2840 Rumst

Omschrijving

Gerenoveerde investeringseigendom te Rumst

In het centrum van Rumst vinden we deze gerenoveerde investeringseigendom terug. Deze wordt momenteel verhuurd aan 1.100 euro per maand en heeft slechts een KI van 389 euro, wat een nettorendement van maar liefst 3,90% oplevert.

De gemoderniseerde woning bestaat uit een inkomhal, woonkamer met eetplaats en een volledig uitgeruste open keuken. Er is ook een afzonderlijk gastentoilet en een berging met de voorzieningen voor wasmachine en droogkast.

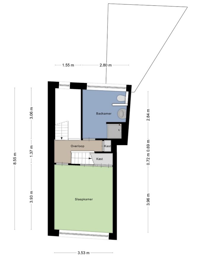
Op de eerste verdieping is er de grote slaapkamer en een ruime badkamer met douche, toilet en lavabo. Op de tweede verdieping zijn er nog 2 extra slaapkamers. Buiten werd het terras recent aangelegd met een steentapijt.

Deze woning is technisch gezien perfect in orde: er is een gunstige EPC-score, de elektriciteit is conform gekeurd en de CV-ketel werd nog in 2024 vernieuwd.

Pandenjagers is een transparant vastgoedkantoor waarbij de kopers een vaste commissie van 10.000 euro (incl. BTW) bovenop de vraagprijs betalen. Zo kennen kopers duidelijk de kosten en de werkelijke waarde van hun aankoop. Dit verschilt van traditionele makelaars die de commissie verbergen in een te hoge verkoopprijs.

Contacteer ons voor een bezoek via 015/677.000 of info@pandenjagers.be.


Niet gevonden wat u zocht? Schrijf u dan vrijblijvend in en blijf op de hoogte van ons recentste aanbod.
Schrijf u in
Terug naar boven
Sluit menu Pandenjagers