In het centrum van Duffel-Oost, op wandelafstand van winkels, scholen en openbaar vervoer, bevindt zich deze te renoveren rijwoning met drie bouwlagen en een zonnige tuin met kunstgras en tuinhuis. De ideale kans voor wie op zoek is naar een renovatieproject met karakter om naar eigen smaak een warme thuis te creëren.
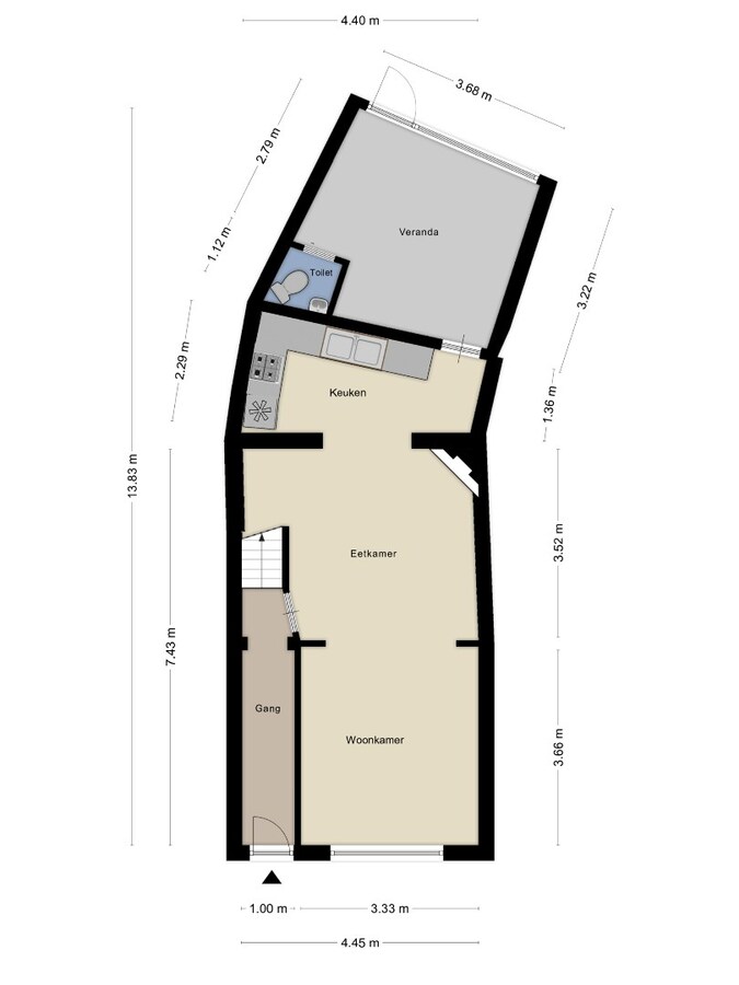
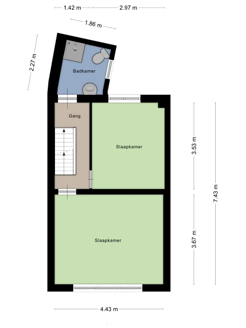
Het gelijkvloers omvat een leefruimte met open keuken, een extra kamer achteraan die kan dienen als bureau, speelkamer of hobbyruimte, en een apart toilet. Op de eerste verdieping zijn er twee slaapkamers en een badkamer met douche en toilet. De derde slaapkamer bevindt zich op de tweede verdieping.
De zonnige, onderhoudsvriendelijke tuin met kunstgras en tuinhuis vormt een groot pluspunt – een heerlijke plek om te ontspannen midden in het centrum. Het dak werd vernieuwd in 2014, wat een solide basis biedt voor verdere renovatie.
Renovatieplicht: binnen de 5 jaar moet het EPC naar label D of beter gebracht worden.
Pandenjagers is een innovatief vastgoedkantoor en kiest bewust voor een unieke en transparante aanpak. Bij ons bestaat de totale aankoopprijs altijd uit twee duidelijke onderdelen: de vraagprijs die bovenaan in de advertentie vermeld staat, plus onze vaste commissie van 10.000 euro incl. BTW. Dankzij deze open prijsstructuur krijgt u als koper vanaf het eerste moment een eerlijke inkijk hoe de totale prijs van het pand tot stand is gekomen.
Interesse? Contacteer ons via 0465/082.669 of info@pandenjagers.be.
| Adres: | Kapelstraat 101 Duffel |
| Referentie: | 02141 |
| Vraagprijs: | € 195.000 |
| Type: | Woning |
| Beschikbaar vanaf: | Bij akte |
| Perceeloppervlakte: | 93 m² |
| Bewoonbare opp.: | 134 m² |
| Type constructie: | Traditioneel |
| Bouwjaar: | 1963 |
| Bouwlagen: | 2 |
| Slaapkamers: | 3 |
| Badkamers: | 1 |
| WC: | 2 |
| Woonkamer: | Ja |
| Keuken: | Ja |
| Tuin: | Ja |
| Tuin oriëntatie: | Zuid-Oost |
| Tuin kwaliteit: | Fraai aangelegd |
| Snelweg: | Ja - op 4000 m tot 5000 m |
| Treinstation: | Ja - op 2000 m tot 3000 m |
| Bushalte: | Ja - op minder dan 500 m |
| Winkel: | Ja - op 500 m tot 1000 m |
| School: | Ja - op 500 m tot 1000 m |
| Kinderopvang: | Ja - op 500 m tot 1000 m |
| Bank: | Ja - op minder dan 500 m |
| Ontspanning: | Ja - op minder dan 500 m |
| Restaurant: | Ja - op minder dan 500 m |
| Raamwerk: | Aluminium |
| Dak: | Zadeldak |
| Dakbedekking: | Dakpannen |
| Gevel: | Baksteen |
| Beglazing: | Enkel, Dubbel |
| Verwarming: | CV-ketel, Gaskachels, Gashaard |
| Isolatie: | Dakisolatie |
| Niet geïndexeerd K.I.: | € 607 |
| Kadastrale benaming: | Huis |
| Kadastrale Nummers: | 0099PP0000 , 0100LP0000 |
| Kadastrale Oppervlakte: | 93 m² |
| EPC Certificaat Nr.: | 20251015-0003710306-RES-2 |
| EPC Index: | 420,00 kWh/(m² jaar) |
| Energielabel: | E |
| Renovatieplicht: | Ja |
| EPC Geldig tot: | 15/10/2035 |
| Asbestattest: | Ja |
| Energie Prestatie Certificaat: | Ja |
| Stedenbouwkundige vergunning: | Ja |
| Voorkooprecht: | Neen |
| Verkavelingsvergunning van toepassing: | Neen |
| Stedenbouwkundige bestemming: | Woongebied |
| Dagvaarding en herstelvordering: | Geen rechterlijke herstelmaatregel of bestuurlijke maatregel opgelegd |
| Overstromingsgevoelig: | Geen overstromingsgevoelig gebied |
| Overstromingsgebied: | Geen afgebakende zones |
| Overstromingskans perceel (P-score): | A |
| Overstromingskans gebouw (G-score): | A |
| Erfgoed: | Geen beschermd erfgoed |
| Deze eigendom kan onderhevig zijn aan de renovatieverplichting die door de Vlaamse overheid wordt opgelegd voor residentiële gebouwen. Consulteer voor meer informatie de website van het Vlaams Energie- en Klimaatagentschap via https://www.vlaanderen.be/een-woning-kopen/renovatieverplichting-voor-residentiele-gebouwen | |