U gebruikt een verouderde internetbrowser.
We raden u aan om de meest recente internetbrowser te installeren voor de beste weergave van deze website.
Een internetbrowser die up to date is, staat ook garant voor veilig surfen.

Binnenweg 31 , 2570 Duffel
Vraagprijs: € 650.000

Omschrijving

Gerenoveerde woning met uitzonderlijk groot magazijn op unieke locatie te Duffel

Deze halfopen woning is ideaal voor wie droomt van ruimte, rust en natuur.

Gelegen op een prachtig perceel in een groene en landelijke omgeving, geniet u hier van volledige rust en een magnifiek uitzicht.

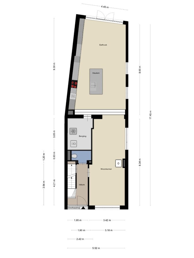
De woning is lichtrijk en praktisch ingedeeld, dit met een mooie leefruimte met open keuken, 4 slaapkamers en een badkamer met bad en inloopdouche.

Absolute blikvanger is het uitzonderlijk groot magazijn van zo'n 240 m2 : perfect voor zelfstandigen, opslag, werkruimte of een groot hobbyproject. Het magazijn is vlot toegankelijk en biedt eindeloze mogelijkheden. Achteraan het magazijn heb je een prachtig terras met uitzicht over een parel van een tuin met zicht op groen.

Troeven:
- Rustige ligging, omringd door groen en de Nete
- Lichtrijke gerenoveerde woning op felbegeerde locatie
- Vergund magazijn met tal van toepassingen
- Ruim perceel en praktische oprit
- Gunstige EPC

Pandenjagers is een innovatief vastgoedkantoor en kiest bewust voor een unieke en transparante aanpak. Bij ons bestaat de totale aankoopprijs altijd uit twee duidelijke onderdelen: de vraagprijs die bovenaan in de advertentie vermeld staat, plus onze vaste commissie van 10.000 euro incl. BTW. Dankzij deze open prijsstructuur krijgt u als koper vanaf het eerste moment een eerlijke inkijk hoe de totale prijs van het pand tot stand is gekomen.

Interesse? Contacteer ons via 015/677.000 of info@pandenjagers.be.


Kenmerken

Algemeen

Adres:Binnenweg 31
Duffel
Referentie:02138
Vraagprijs:€ 650.000
Type:Woning
Beschikbaar vanaf:In overleg
Ligging:Aan bosrand, Aan water
Perceeloppervlakte:996 m²
Bewoonbare opp.:196 m²
Type constructie:Traditioneel
Bouwjaar:1962
Renovatiejaar:2014
Bouwlagen:3
Algemene staat:Instapklaar

Indeling

Slaapkamers:4
Badkamers:1
WC:2
Woonkamer:Ja, Woonkamer
Keuken:Ja, Open keuken, Ingericht met toestellen
Kelder:Ja
Terras:Ja
Tuin:Ja
Tuin kwaliteit:Fraai aangelegd
Garage:1
Parking:3

Comfort

Snelweg:Ja - op 4000 m tot 5000 m
Treinstation:Ja - op 2000 m tot 3000 m
Bushalte:Ja - op 500 m tot 1000 m
Winkel:Ja - op 500 m tot 1000 m
School:Ja - op minder dan 500 m
Kinderopvang:Ja - op minder dan 500 m
Bank:Ja - op 500 m tot 1000 m
Ontspanning:Ja - op minder dan 500 m
Restaurant:Ja - op minder dan 500 m
Raamwerk:Hout, Aluminium
Dak:Zadeldak
Dakbedekking:Dakpannen
Gevel:Baksteen
Fundering:Kelder
Beglazing:Hoogrendementsglas
Verwarming:CV-ketel, Aardgas
Verwarmd water:Condensatieketel
Isolatie:Dakisolatie
Internet:Ja
Rolluiken:Ja

Kadastrale gegevens

Niet geïndexeerd K.I.:€ 1.525
Kadastrale benaming:Huis
Kadastrale Nummers:0038D2P0000 , 0038E2P0000 , 0038F2P0000
Kadastrale Oppervlakte:996 m²

Informatieplicht

EPC Certificaat Nr.:20250912-0003682965-RES-1
EPC Index:257,00 kWh/(m² jaar)
Energielabel:C
Renovatieplicht:Neen
EPC Geldig tot:12/09/2035
Asbestattest:Ja
Energie Prestatie Certificaat:Ja
OVAM – Bodemattest:Ja
Informatieplicht overstromingsgevaar:Ja
Elektriciteitskeuring:(Conform)
Stedenbouwkundige vergunning:Ja
Voorkooprecht:Neen
Verkavelingsvergunning van toepassing:Neen
Stedenbouwkundige bestemming:Woongebied
Dagvaarding en herstelvordering:Geen rechterlijke herstelmaatregel of bestuurlijke maatregel opgelegd
Overstromingsgevoelig:  Effectief overstromingsgevoelig gebied
Overstromingsgebied:Geen afgebakende zones
Overstromingskans perceel (P-score):  D
Overstromingskans gebouw (G-score):C
Erfgoed:Geen beschermd erfgoed

Ligging

360°

Neem vrijblijvend contact op

Wenst u meer informatie of het pand te bezoeken? Vul onderstaand formulier in of bel ons op 0472 372 844.


U moet akkoord gaan met het privacybeleid van deze website
* Verplicht in te vullen
Niet gevonden wat u zocht? Schrijf u dan vrijblijvend in en blijf op de hoogte van ons recentste aanbod.
Schrijf u in
Terug naar boven
Sluit menu Pandenjagers