U gebruikt een verouderde internetbrowser.
We raden u aan om de meest recente internetbrowser te installeren voor de beste weergave van deze website.
Een internetbrowser die up to date is, staat ook garant voor veilig surfen.

Helaas, dit pand is verkocht

2570 Duffel

Omschrijving

Gerenoveerde woning met 2 slaapkamers te Duffel

Deze rijwoning werd tussen 2011 en 2019 grondig gerenoveerd en geniet daardoor van een gunstige EPC, conforme elektriciteit en bovendien werd de woning asbestveilig verklaard.

Langs het padje in de voortuin, betreden we de woning via de inkomhal, die toegang geeft tot de moderne benedenverdieping. De woonkamer, eetplaats en moderne keuken vormen een open geheel, wat voor veel ruimtelijk gevoel zorgt. Bovendien is er plaats om er een bureau te plaatsen en zijn er ingebouwde kasten voorzien. Er is ook een berging en een gastentoilet.

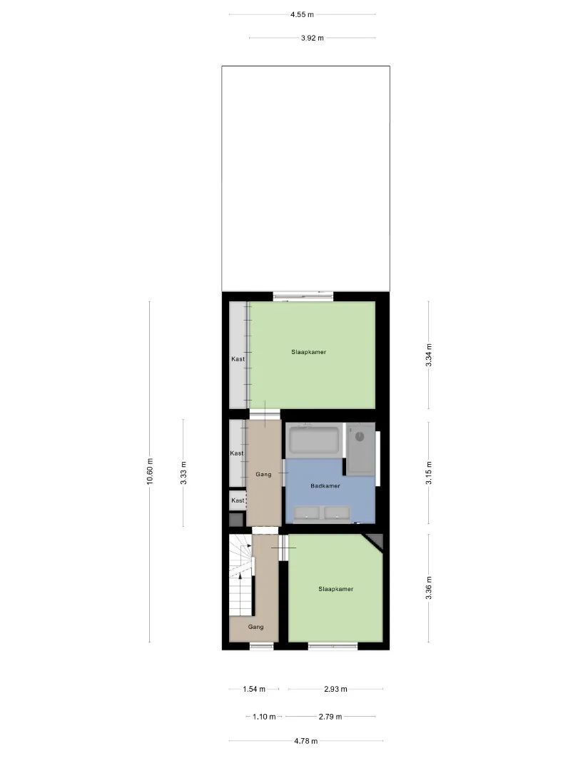
Op de eerste verdieping zijn er 2 slaapkamers en is er een vernieuwde badkamer met bad én douche. Er is ook nog een praktische bergzolder in de woning, deze is echter te laag om er nog een slaapkamer van te maken. Buiten is er een gezellige, omheinde tuin aangelegd. De achtergevel van de woning dient echter nog wel afgewerkt te worden (met bijvoorbeeld crepi).

Pandenjagers is een innovatief vastgoedkantoor en kiest bewust voor een unieke en transparante aanpak. Bij ons bestaat de totale aankoopprijs altijd uit twee duidelijke onderdelen: de vraagprijs die bovenaan in de advertentie vermeld staat, plus onze vaste commissie van 10.000 euro incl. BTW. Dankzij deze open prijsstructuur krijgt u als koper vanaf het eerste moment een eerlijke inkijk hoe de totale prijs van het pand tot stand is gekomen.

Contacteer ons voor een bezoek via 015/677.000 of info@pandenjagers.be.


Niet gevonden wat u zocht? Schrijf u dan vrijblijvend in en blijf op de hoogte van ons recentste aanbod.
Schrijf u in
Terug naar boven
Sluit menu Pandenjagers