U gebruikt een verouderde internetbrowser.
We raden u aan om de meest recente internetbrowser te installeren voor de beste weergave van deze website.
Een internetbrowser die up to date is, staat ook garant voor veilig surfen.

Helaas, dit pand is verkocht

2570 Duffel

Omschrijving

Te moderniseren woning in Duffel-West

IN OPTIE - stuur ons een bericht om op de reservelijst te komen.

In het centrum van Duffel-West, vinden we deze gezellige, te moderniseren woning terug.

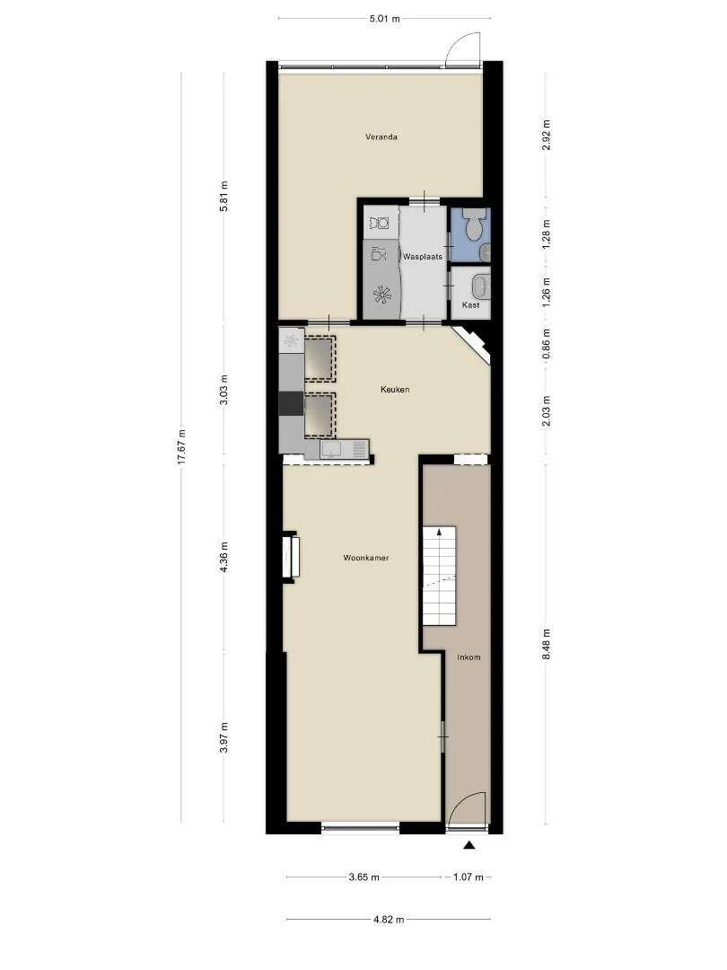
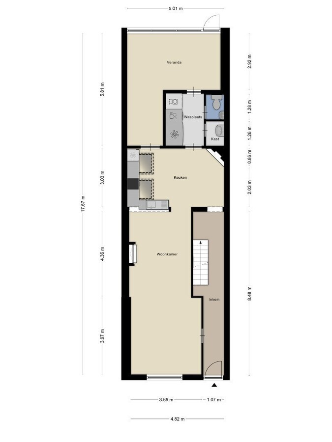
De woning heeft een diepe inkomhal met een verbinding naar de open woonkamer, eetplaats en keuken. Achterliggend is er een wasruimte met afzonderlijk toilet en een mooie, lichtrijke veranda, met van daaruit de toegang naar de onderhoudsvriendelijke tuin.

Op de eerste verdieping zijn er 2 ruime slaapkamers. Bovendien is er een achterbouw gerealiseerd met daarin een bureauruimte en een badkamer met douche. Via de vaste trap naar de tweede verdieping komt men in de af te werken zolder met daarbij ruimte voor 1 of 2 slaapkamers. Momenteel zijn er voor de verwarming enkel gaskachels voorzien.

Mits opfrissing kan er van deze woning een gezellige thuis worden gemaakt, gunstig gelegen nabij de op- en afritten van de E19 en nabij het dorpscentrum van Duffel.

Pandenjagers is een innovatief vastgoedkantoor en kiest bewust voor een unieke en transparante aanpak. Bij ons bestaat de totale aankoopprijs altijd uit twee duidelijke onderdelen: de vraagprijs die bovenaan in de advertentie vermeld staat, plus onze vaste commissie van 10.000 euro incl. BTW. Dankzij deze open prijsstructuur krijgt u als koper vanaf het eerste moment een eerlijke inkijk hoe de totale prijs van het pand tot stand is gekomen.

Renovatieplicht: binnen de 5 jaar moet het EPC naar label D of beter gebracht worden. Na het installeren van een moderne CV-installatie zal de EPC 378 kWh/m2 jaar bedragen.

Interesse? Contacteer ons via 015/677.000 of info@pandenjagers.be.


Niet gevonden wat u zocht? Schrijf u dan vrijblijvend in en blijf op de hoogte van ons recentste aanbod.
Schrijf u in
Terug naar boven
Sluit menu Pandenjagers