U gebruikt een verouderde internetbrowser.
We raden u aan om de meest recente internetbrowser te installeren voor de beste weergave van deze website.
Een internetbrowser die up to date is, staat ook garant voor veilig surfen.

Helaas, dit pand is verkocht

2570 Duffel

Omschrijving

Gezellige instapklare rijwoning te Duffel-Oost

Deze gezellige rijwoning te Duffel-Oost heeft dankzij de rustige éénrichtingsstraat een erg gunstige ligging. De woning bestaat op het gelijkvloers uit een inkomhal met van daaruit de toegang tot de lichtrijke woonkamer en eetplaats, met achterliggend de functionele keuken. Er is een afzonderlijke berging en ook de badkamer ligt op het gelijkvloers, bestaande uit een douche, lavabo en toilet.

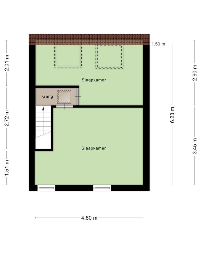
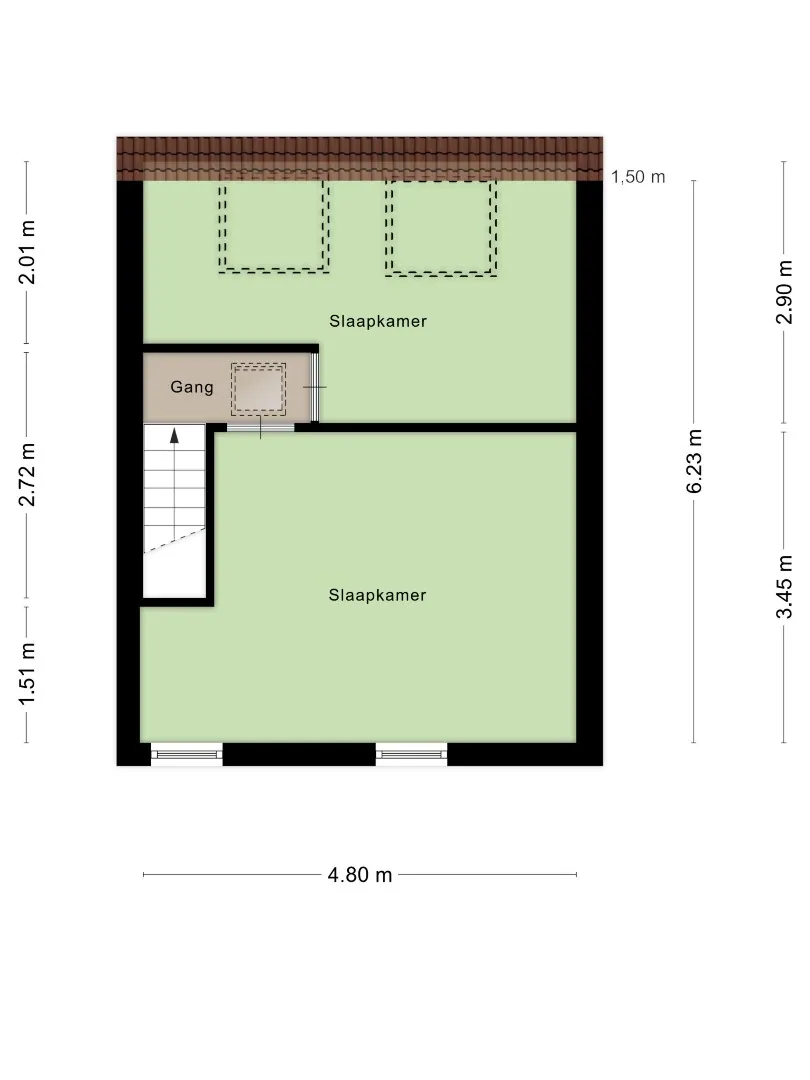
Op de eerste verdieping zijn er 2 ruime slaapkamers. Verder heeft de woning ook een droge kelder. Achteraan de woning is er een onderhoudsvriendelijke tuin met tuinhuis. Deze is volledig omheind, ideaal voor de kindjes of om er bijvoorbeeld een hondje te houden.

Een grote troef is dat er achteraan ook een achterpoort is, waardoor de fietsen veilig via een achterliggend steegje in het tuinhuis kunnen gezet worden. Een andere troef is dat je bovendien buiten van de rust kan genieten, dankzij de kalme omgeving. En zeker niet onbelangrijk: het pand heeft een gunstige EPC, waardoor er geen renovatieverplichting is.

Pandenjagers is een innovatief vastgoedkantoor en kiest bewust voor een unieke en transparante aanpak. Bij ons bestaat de totale aankoopprijs altijd uit twee duidelijke onderdelen: de vraagprijs die bovenaan in de advertentie vermeld staat, plus onze vaste commissie van 10.000 euro incl. BTW. Dankzij deze open prijsstructuur krijgt u als koper vanaf het eerste moment een eerlijke inkijk hoe de totale prijs van het pand tot stand is gekomen.

Op zoek naar een knusse, instapklare en toch betaalbare woning? Contacteer ons voor een bezoek via 015/677.000 of info@pandenjagers.be.


Niet gevonden wat u zocht? Schrijf u dan vrijblijvend in en blijf op de hoogte van ons recentste aanbod.
Schrijf u in
Terug naar boven
Sluit menu Pandenjagers