U gebruikt een verouderde internetbrowser.
We raden u aan om de meest recente internetbrowser te installeren voor de beste weergave van deze website.
Een internetbrowser die up to date is, staat ook garant voor veilig surfen.

Helaas, dit pand is verkocht

2570 Duffel

Omschrijving

Instapklare rijwoning met 4 slaapkamers te Duffel

Deze instapklare woning te Duffel-West werd doorheen de jaren goed onderhouden en systematisch gemoderniseerd. Zo werd onder meer de badkamer in 2009 vernieuwd, werden de ramen in 2012 vernieuwd en is er extra isolatie gestoken, wat resulteert in een mooie EPC-score van 213 kWh/m2 jaar.

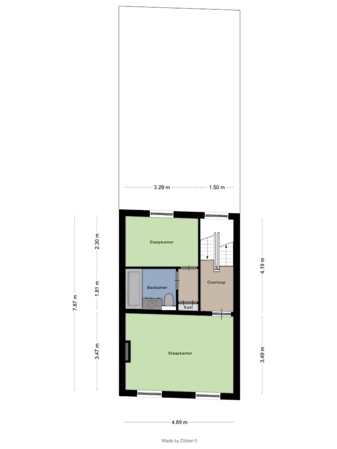
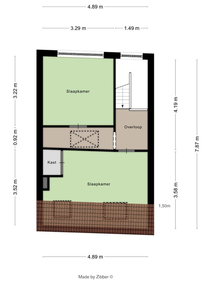
Bij het binnenkomen in de inkomhal vallen de mooie, hoge plafonds op. De grote ramen van de woonkamer zorgen voor veel lichtinval. Deze ruimte staat in verbinding met de eetplaats en de moderne leefkeuken. Achteraan de woning is er nog een extra veranda met berging en toilet. Op de eerste verdieping zijn er 2 slaapkamers en een moderne badkamer. De tweede verdieping heeft nog eens extra 2 slaapkamers en een toegang naar de geïsoleerde bergzolder. Er is bovendien een ruime, zuidgerichte en dus zonnige tuin.

Vlakbij de woning bevinden zich nog eens 2 garageboxen die optioneel aan te kopen zijn. De middelgrote garage kost 20.000 euro en de kleine garage 15.000 euro (deze is slechts geschikt voor een kleine stadswagen). Dit biedt extra parkeergelegenheid en opslagruimte voor wie dat nodig heeft.

Pandenjagers is een transparant vastgoedkantoor waarbij de kopers een vaste commissie van 10.000 euro (incl. BTW) bovenop de vraagprijs betalen. Zo kennen kopers duidelijk de kosten en de werkelijke waarde van hun aankoop. Dit verschilt van traditionele makelaars die de commissie verbergen in een te hoge verkoopprijs.

Contacteer ons voor een bezoek via 0472.372.844 of info@pandenjagers.be.


Niet gevonden wat u zocht? Schrijf u dan vrijblijvend in en blijf op de hoogte van ons recentste aanbod.
Schrijf u in
Terug naar boven
Sluit menu Pandenjagers