U gebruikt een verouderde internetbrowser.
We raden u aan om de meest recente internetbrowser te installeren voor de beste weergave van deze website.
Een internetbrowser die up to date is, staat ook garant voor veilig surfen.

Helaas, dit pand is verkocht

2570 Duffel

Omschrijving

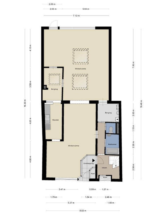
Handelshuis met winkelgedeelte en appartement te Duffel

Te midden van de winkelstraat van Duffel, vinden we dit te moderniseren handelshuis, bestaande uit een winkelpand en een duplex appartement.

Op het gelijkvloers ligt er de handelsruimte van 113 m2. Er is een eigen inkom voorzien en een grote, open winkelruimte. Er is bovendien een afzonderlijke berging en keuken aanwezig, met verder ook een technische berging, een afzonderlijk toilet en een badkamer. Achteraan is er nog een verrassend ruime tuin ter beschikking. Extra troef: er is een gunstige EPC-score (C-label).

Op de eerste verdieping is er een duplex appartement van 130 m2 met tevens een gunstige EPC-score: 204 kWh/m2 jaar (C-label). De eerste verdieping bestaat uit de woonkamer, eetplaats, keuken met balkon, badkamer, berging en afzonderlijk toilet. De tweede verdieping bestaat uit 3 slaapkamers.

Het pand werd asbestveilig verklaard. Het hoofddak werd nog vernieuwd in 2009, het plat dak dient vernieuwd of hersteld te worden.

Pandenjagers is een innovatief vastgoedkantoor en kiest bewust voor een unieke en transparante aanpak. Bij ons bestaat de totale aankoopprijs altijd uit twee duidelijke onderdelen: de vraagprijs die bovenaan in de advertentie vermeld staat, plus onze vaste commissie van 10.000 euro incl. BTW. Dankzij deze open prijsstructuur krijgt u als koper vanaf het eerste moment een eerlijke inkijk hoe de totale prijs van het pand tot stand is gekomen.

Contacteer ons voor een bezoek via 015/677.000 of info@pandenjagers.be.


Niet gevonden wat u zocht? Schrijf u dan vrijblijvend in en blijf op de hoogte van ons recentste aanbod.
Schrijf u in
Terug naar boven
Sluit menu Pandenjagers