U gebruikt een verouderde internetbrowser.
We raden u aan om de meest recente internetbrowser te installeren voor de beste weergave van deze website.
Een internetbrowser die up to date is, staat ook garant voor veilig surfen.

Helaas, dit pand is verkocht

2570 Duffel

Omschrijving

Deels vernieuwde bel-etage met EPC B-label te Duffel

Deze bel-etage ligt in de gezellige Duffelse woonwijk De Beunt. Er werden grondige vernieuwingen gedaan, waaronder nieuwe ramen en deuren (2019), een nieuwe elektriciteitskast (2019), een nieuw dak met isolatie (2020), een nieuwe CV-ketel (2021) en een nieuwe automatische garagepoort (2025). Dit alles zorgt voor een zeer gunstige EPC-score van 160 kWh/m2 jaar (B-label).

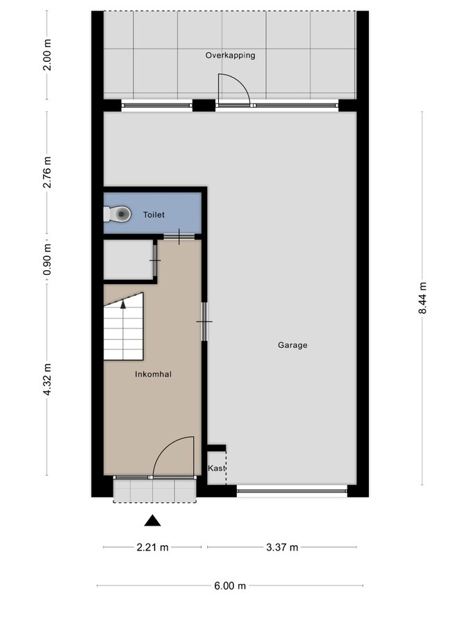
De woning bestaat op het gelijkvloers uit een inkomhal met kastruimte, een gastentoilet en de garage, die ruim 8 meter diep is. Hier zijn ook de voorzieningen voor een wasmachine en droogkast.

Op de eerste verdieping is er een lichtrijke woonkamer. De te vernieuwen keuken kan nog enkele jaren dienen, maar de optie bestaat ook om er een modern open geheel van te maken, in combinatie met de woonkamer. Er is verder ook nog toegang tot het balkon.

Op de tweede verdieping bevindt zich de badkamer en zijn er twee slaapkamers en een derde, compacte kamer.

De buitenruimte werd onderhoudsvriendelijk aangelegd en is volledig omheind, ideaal voor de kindjes en/of honden.

Pandenjagers is een innovatief vastgoedkantoor en kiest bewust voor een unieke en transparante aanpak. Bij ons bestaat de totale aankoopprijs altijd uit twee duidelijke onderdelen: de vraagprijs die bovenaan in de advertentie vermeld staat, plus onze vaste commissie van 10.000 euro incl. BTW. Dankzij deze open prijsstructuur krijgt u als koper vanaf het eerste moment een eerlijke inkijk hoe de totale prijs van het pand tot stand is gekomen.

Contacteer ons voor een bezoek via 015 677 000 of info@pandenjagers.be.


Niet gevonden wat u zocht? Schrijf u dan vrijblijvend in en blijf op de hoogte van ons recentste aanbod.
Schrijf u in
Terug naar boven
Sluit menu Pandenjagers